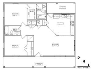
About the Brookston
The Brookston is a small cottage-like home perfect for a weekend retreat or rental property. The use of pre-engineered metal building products of a standard size (30′ x 40′, with a 6′ deep add-on porch) helps reduce construction costs and build time. However, the plan can also be easily adapted to traditional construction if desired.
This designed is named after tiny Brookston, Texas, where the first of this model was built.
The Brookston at a Glance
Style: contemporary ranch
Slab Area: 1,460 square feet
Interior Area: 1,124 square feet
Stories: 1
Bedrooms: 2
Baths: 2
Garage: No
Window Area: 54 square feet (17% of facade)
Extras: large living area, bar area, large front porch
Price: $400

