About the Farmington
Probably the most popular architectural style during the mid to late 1800s was Victorian architecture. This style was fairly varied, having various sub-styles such as Queen Anne, Gothic, Shingle, and Eastlake. However, the most common style of Victorian architecture was probably a simplified ‘farmhouse’ style that kept the overall massing of Victorian homes but featured the simpler lines, exterior details, and floor plans of the earlier Georgian style of architecture. One such ‘farmhouse Victorian’ home is the Thelma Horn Residence in Farmington, Missouri’s original neighborhood near downtown, built circa 1876.
Style: early Victorian / Victorian farmhouse
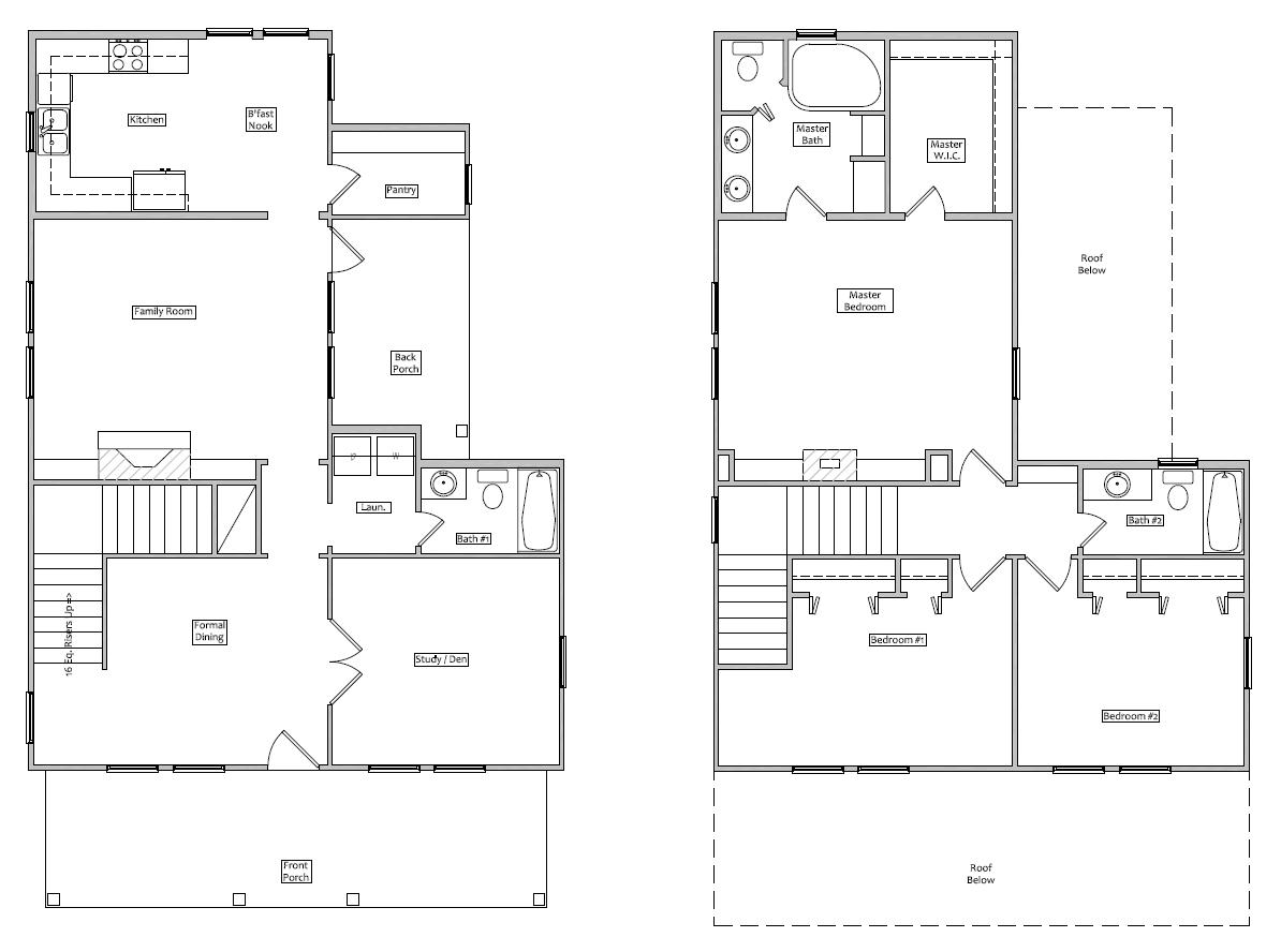
Slab Area: 1,984 square feet
Interior Area: 1,403 square feet
Stories: 2
Bedrooms: 3
Baths: 3
Garage: None
Window Area: 120 square feet (22% of facade)
Price: $600

