About the Bonne Terre
One of only five French Colonial era ‘poteux en terre’ houses remaining in the United States, the Louis Bolduc house was built in the 1790s overlooking the Mississippi River valley in St. Genevieve, Missouri. Like other examples of this style, this log cabin has vertical posts anchored in the earth to form walls, as opposed to the more familiar “Swedish” style of log cabin where logs are laid horizontally and overlapped.
The Louis Bolduc house is of a similar size- approximately 3,600 square feet in area, making it quite large and very much the home of gentry in its day. The house was originally built with a deep, wrap-around porch, several bedrooms (again, a mark of a wealthy family’s house), dining room, and kitchen. It also featured a front yard enclosed by a low palisade wall of upright logs set side-by-side.
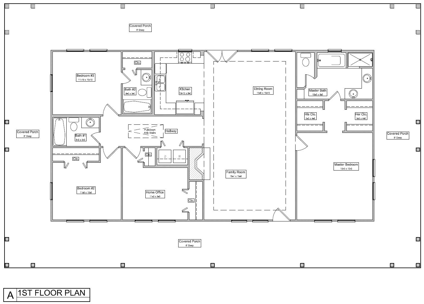
The Bonne Terre (French for ‘good earth’) draws heavily on the Bolduc House and the similar but much smaller Bequet-Ribault House for inspiration. The Bonne Terre preserves the wraparound porch of these houses, and includes a modern kitchen, large living and dining room with cathedral ceiling, three bedrooms and three baths, and a bonus room perfect for a home office or craft room. Like the original, the Bonne Terre is intended to have a stucco plaster exterior, but pairs this with modern windows and metal roof for a more contemporary look.
Style: French Colonial ‘Creole’
Slab Area: 3,265 square feet
Interior Area: 1,645
Stories: 1
Bedrooms: 3
Baths: 3
Garage: None
Window Area: 120 square feet (25% of facade)
Extras: wraparound porch, home office, his and her walk-in closets
Price: $700

