About the St Mary
One of only five French Colonial era ‘poteux en terre’ houses remaining in the United States, the Bequet-Ribault house was built in the 1780s overlooking the Mississippi River valley in St. Genevieve, Missouri. Like other examples of this style, this log cabin has vertical posts anchored in the earth to form walls, as opposed to the more familiar “Swedish” style of log cabin where logs are laid horizontally and overlapped.
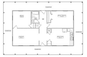
The St Mary, with its compact floor plan and deep, shady, wraparound porches, is ideal for a weekend retreat or cozy country home. In fact, the Bequet-Ribault home was recently restored by a private individual for just that purpose!
Style: French Colonial
Slab Area: 1,900 square feet
Interior Area: 900 square feet
Stories: 1
Bedrooms: 2 (master bedroom + bunkroom)
Baths: 1
Garage: No
Window Area: 60 square foot (17% of facade)
Price: $400

